Предлагаем новые прекрасные одноквартирные жилые дома в а/г Новка по ул. Манежная!
Уникальная возможность приобретения с поддержкой ОАО «АСБ БЕЛАРУСБАНК» на ОЧЕНЬ ВЫГОДНЫХ условиях !
Фасады домов выполнены в современном архитектурном стиле в соответствии с нормативными требованиями.
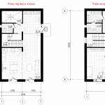
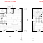
Дома двухэтажные с плоской кровлей в двух вариантах:
📌 6х10 м, общая площадь – 131 м2;
📌 8х8 м, общая площадь — 140 м2.
Цена домика от 220 982,15 рублей
СПЕЦИАЛЬНОЕ ПРЕДЛОЖЕНИЕ
цена 1688 за м2
Планировка — СВОБОДНАЯ !
Вы можете реализовать в доме своей мечты любые творческие замыслы!
ПРИГЛАШАЕМ Вас на осмотр дома непосредственно на участке !!!
Все интересующие вопросы можете задать по тел.:⠀
☎️+375 (29) 218-12-44 (МТС)⠀
⠀⠀⠀8 (0212) 33-98-35⠀
⠀
Либо подъехать в здание управления Государственного предприятия «Витебский ДСК» по адресу:⠀
📍г. Витебск, пр-т Московский, 55.


























